Compasso D’oro
grinover associados arquitetura e design
Home
Fale Conosco
Institucional
Histórico
Currículo
Arquitetura
Residência Itatiba
Reforma Aparaó
Via Cenni
Farol
Casa da Árvore
Casa CLT Japi
Cambodian Sustainable Housing Design Competition
Condomínio Guarujá - Ilhote de Tijucopava
Anexo - Residência Unifamiliar em Atibaia
Residência Morro do Querosene
Concurso Câmara Presidente Prudente
Reforma Casa Arujá
Arquitetura de Interiores
Design Industrial
Comunicação Visual
Mobiliário Urbano
Exposições
News
Projetos de Móveis - Parceria de Stefano Levorato e Enzo Grinover
Estão abertas as incrições para a compra dos vinhos
Notícias do Cietec: "Essa é a chave dos nossos sonhos"
Nova Poltrona Corbu
Conheça o Sofá Lungopiano
Lançamento: Chaise Longue
Tripolina
Pesquisas
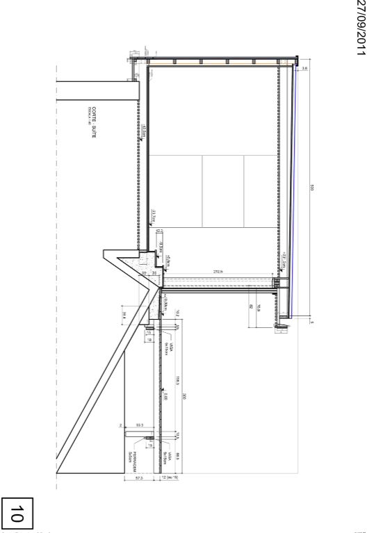
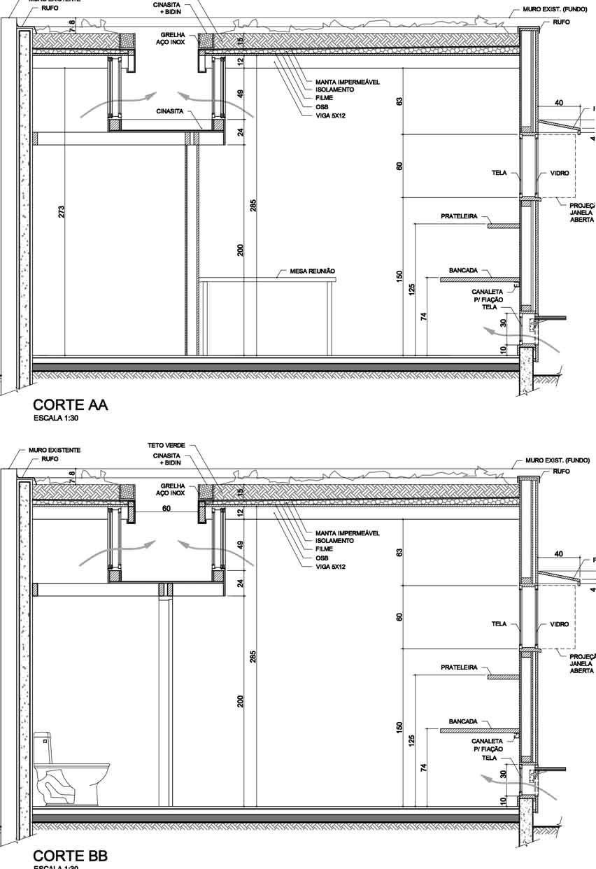
Arquitetura - Reforma Aparaó
Voltar
Espaço arquitetônico preserva e aproveita a natureza em residência dentro de São Paulo.
Projeto
Obra